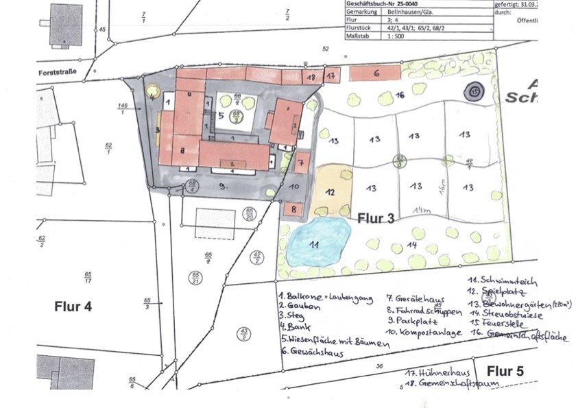
Die Aufteilung der Gebäude und die Grundrisse der Wohn- und Gewerbeflächen sind in Planung. 

Bestandspläne

Entwurf

Gebäude

Das Wohnhaus

Die Scheune

Der Kuhstall

Der Schweinestall

Stallgebäude

Hühnerhaus