Leistungsspektrum
• Holzbau
• Fachwerksanierung
• Restauration
• Energetische Sanierungsarbeiten
• Wärmedämmung
• Fassadenverkleidung
• Innenausbau
• Ladenbau
• Massivholzmöbelbau
• Bautischlerarbeiten
• Holzarbeiten im Außenbereich: Gartenhaus, Terrasse, Wintergarten, Carport, Spielplatz…
• Kleinwohnformen: Kleinsthaus / Tiny House, Bauwagen, Baumhaus, Camper…
• Planung & Bauleitung
• Bevorzugte Baustoffe: Holz, Hanf, Stroh, Lehm & Kalk
Wertiges und ressourcenschonendes Bauen: Natürliche nachwachsende Baustoffe für langlebige Konstruktionen mit altbewährten handwerklichen Techniken und Bauweisen
Bautagebuch baubiologisches Kleinsthaus






















































Kleinsthaus / Tiny House
Wir bauen Ihr individuell maßgeschneidertes Haus aus baubiologisch hochwertigen Materialien. Mit Liebe zum Detail und kreativen Lösungen für kleine Räume.
Mobil oder immobil, mit Fahrgestell oder mit festem Fundament, als Anbau oder freistehend, Baumhaus oder Bauwagen, autark oder angeschlossen an das örtliche Versorgungsnetz.
Tiny House geht auch baubiologisch hochwertig, mit tollem Raumklima, gut geschützt in Sommer und Winter, komfortabel und natürlich ohne Plastik!
Projektvorstellung baubiologisches Kleinsthaus

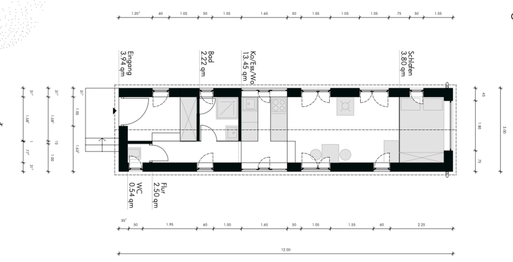
Hausmaße: 3 x 12 x 4 m (Breite x Länge x Höhe)
Holzrahmenbau aus regional bezogenem Bauholz.
sehr konsequent baubiologisch geplant, ökologische und hochwertige Materialien:
Der Grundriss

- Diele mit Garderobe und Einbauschränken für Waschmaschine, Trockner, Tiefkühlschrank, Haustechnik und weiterer Stauraum.
- separate Toilette
- Badezimmer mit Badewanne
- Flur mit Stauraum im Fußbodenpodest
- offene Küche und Wohn- Essbereich mit Holzofen
- eine abtrennbare Schlafkoje mit 1,6 m breitem Bett und viel Stauraum darunter
Der Innenausbau
- Massivholz (Kiefer, Fichte, Zirbe, Eiche, Kirsche, Lärche)
- Handgeformte Terrakotta-Fliesen und handwerklich hergestellte maßangefertigte Tonfliesen, handgewebter Teppichboden
- Hochwertige Sanitäraustattung
- Trockentrenntoilette
- Massivholzküche mit Miele-Geräten
- viele maßangefertigte Einbauschränke und Stauraumlösungen u.a. mit sehr großen Schubkästen im Bodenpodest.
- Beheizung über Holzofen (Pertinger) und alternativ mit hochwertigen Infrarotheizkörpern (redwell).
- Zwischenwände mit Lehmputz
- Lehmziegelwand (Grünlinge) hinter dem Ofen als guter Wärmespeicher.
- Der Innenbereich gibt mit seinen zwei Ebenen, einer Raumhöhe bis 2,8 m, den vielen Fenstern und insbesondere auch den natürlichen Materialien ein tolles Raumgefühl mit 27 m² Wohnfläche zum Wohlfühlen
Die Aufbauten und Materialien
Außenwände
- 23 mm Fichte Rauspund (unbehandelt)
- 35 mm Instalationsebene mit Holzweichfaser ausgedämmt
- 4 mm Dampfbremse (Hanffaserflies mit Lehm-Roggenleim-Schlämme)
- 23 mm Fichte Rauspund (unbehandelt)
- 180 mm Holzständerwerk mit Hanfstopfwolle ausgedämmt
- 35 mm Holzweichfaser
- 46 mm Konterlattung (Hinterlüftungsebene)
- 27 mm Lärchenschalung Nut und Feder (unbehandelt)

Bodenaufbau
- teilweise Fliesen auf Trockenestrich (schwimmender Aufbau)
- teilweise 40cm hohes Podest mit Stauraum mit Massivholz Kiefer
- 23 mm Fichte Rauspund (unbehandelt)
- 4 mm Dampfbremse (Hanffaserflies mit Lehm-Roggenleim-Schlämme)
- 23 mm Fichte Rauspund (unbehandelt)
- 180 mm Holzständerwerk mit Hanfstopfwolle ausgedämmt
- 35 mm Holzweichfaser
- 23 mm Fichte Rauspund (unbehandelt)

Dachaufbau
- 23 mm Fichte Rauspund (unbehandelt)
- 22 mm Instalationsebene mit Holzweichfaser ausgedämmt
- 4 mm Dampfbremse (Hanffaserflies mit Lehm-Roggenleim-Schlämme)
- 23 mm Fichte Rauspund (unbehandelt)
- 180 mm Dachsparren mit Hanfstopfwolle ausgedämmt
- 35 mm Holzweichfaser
- 22 mm Holzweichfaser
- 120 mm Hinterlüftungsebene
- 23 mm Fichte Rauspund (unbehandelt)
- 18 mm OSB mit Dacheindeckung EPDM

Zwischenwände
- 80 mm Holzständerwerk mit Hanfstopfwolle ausgedämmt
- 23 mm Fichte Rauspund beidseitig (unbehandelt)
- teilweise 22 mm Strohplatten als Putzträger für Lehmputz
- teilweise gefliest
Entwurf, Planung & Bauleitung Julian Walbeck


